

Your Backyard Vision, Realized: Design Complete for Sushma! đżâ¨
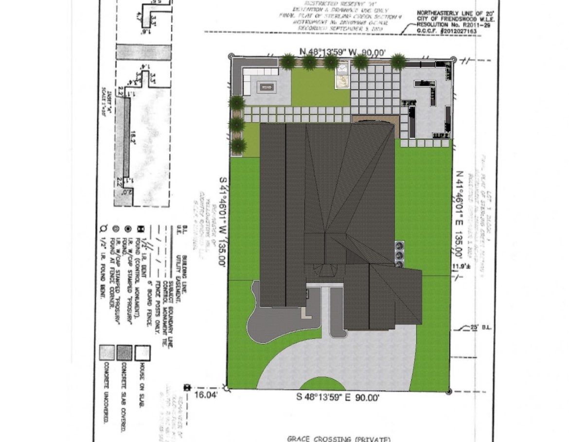
Sushma came to us with an empty canvas and a dream: a complete, cohesive design for her entire backyard. We're excited to share that the whole design is complete and ready to move into the building phase! The Project: Comprehensive Backyard Design This wasn't just a simple sketch. We created a detailed, custom plan that addresses every element needed to transform her outdoor space into a functional and beautiful extension of her home. Key Design Elements Included: Hardscaping Layout: Detailed plans for new patio spaces, walkways, and retaining walls (if required), specifying materials like pavers, stone, or concrete. Aesthetic & Functionality: We incorporated zones for dining, lounging, and utility, ensuring the space flows naturally and meets all of Sushma's lifestyle needs. Planting & Landscape Scheme: A complete layout of new planting beds, sod areas, and garden mixes, designed for both beauty and sustainability in the local climate. Infrastructure Integration: Blueprints showing the placement of all necessary drainage and irrigation systems to protect the property and keep the landscape healthy. 3D Visualization: The design includes a 3D model, allowing Sushma to walk through virtually and see precisely how the finished project will look before any construction begins. Ready to Bring the Design to Life? A thoughtful, professional design is the most crucial step in any successful backyard project. It minimizes costly changes later and ensures a high-value, cohesive final result. â What is the one must-have feature you would include in a complete backyard design? Share your ideas below! đ đĄ Dreaming of a total backyard transformation? Start with the perfect plan. Contact us today to begin designing your ideal outdoor space!








